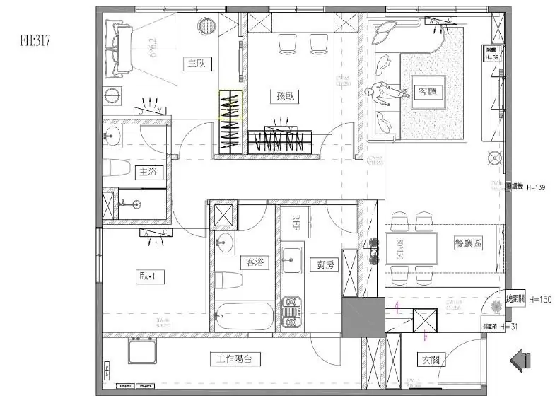
作品集 WORKER 首頁 作品集 住宅設計 清新紓壓宅!鵝黃色可愛北歐風設計 清新紓壓宅!鵝黃色可愛北歐風設計 住宅設計 格局 3房2廳2衛 成員 夫妻&小孩 風格 北歐風 坪數 28坪 屋況 新成屋 地點 桃園市龜山區 建材 木作工程、水電工程、油漆工程、系統櫃、木皮板、烤漆玻璃、造型天花 設計概念 DESIGN CONCEPT 奶油系室內設計整體以機能為訴求,依循北歐的人文風情做為空間設計,更特別利用活潑感的色彩妝點,創造出都會裡一處明亮、清爽的微型宅居。 客、餐廳全面開放,為了讓領域之間的界定更為明確,運用木作質材鋪敘天花與壁面,L型設計除了讓領域劃分更顯明確,也替空間挹注溫潤感的氣息,並與室內裡淡雅的色彩相互輝映,醞釀輕快又愜意的日常氛圍。 ▼看更多色彩繽紛的設計▼ 一房一色計 打造紛呈活潑寓所 格局設計 Layout design 前後比對 Before and after design 其他作品 16 坪北歐風溫潤木感宅 現代北歐風|多功能質感宅 10坪小宅:裝下生活的所有美好 輕奢之境|藝術與質感的大器空間 現代北歐風|展現俐落感的寵物宅 現代感透天|打造時尚品味生活