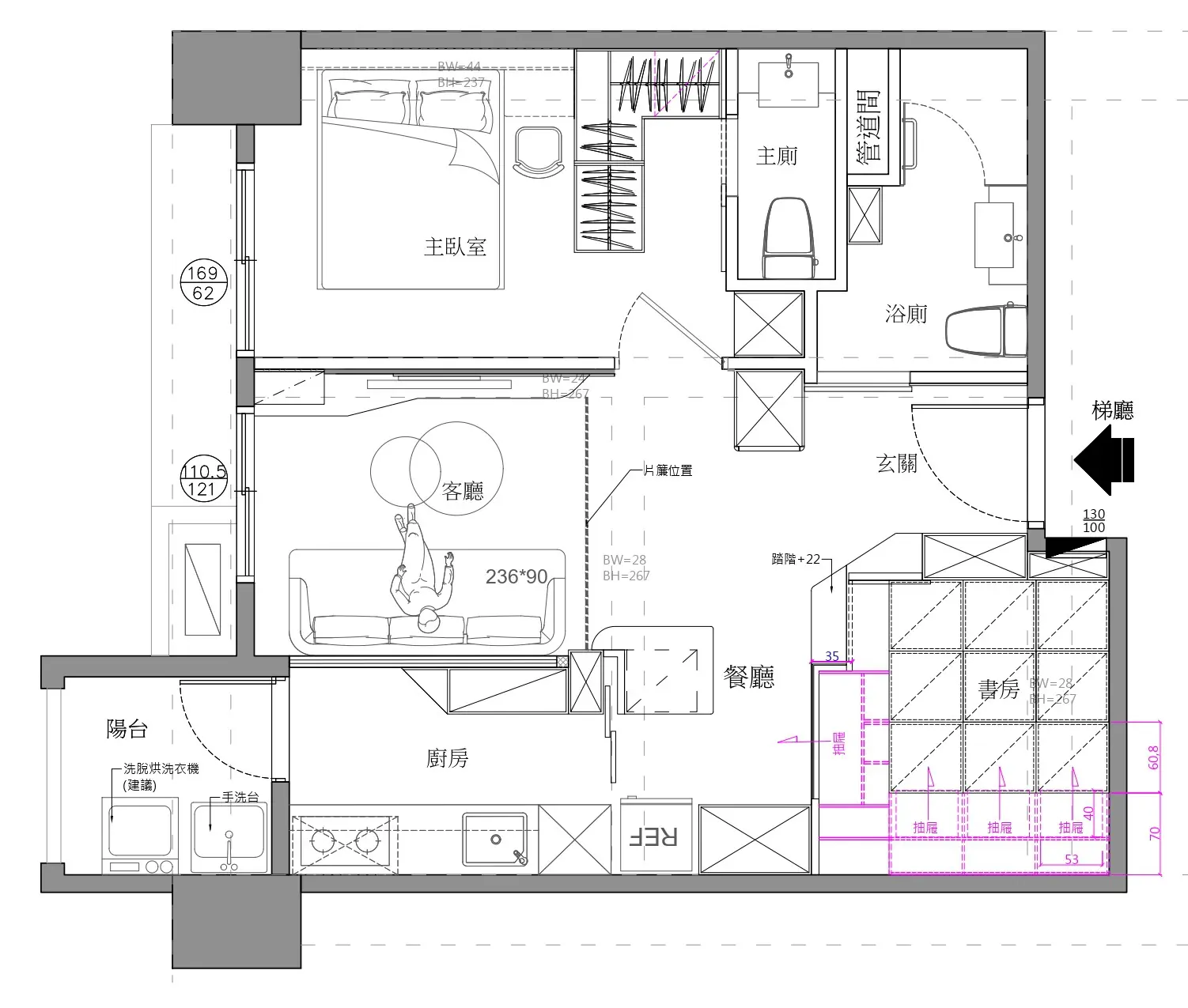
作品集 WORKER 首頁 作品集 住宅設計 16 坪北歐風溫潤木感宅 16 坪北歐風溫潤木感宅 住宅設計 格局 2房1廳2衛 成員 夫妻&小孩 風格 北歐風 坪數 16坪 屋況 新成屋 地點 台北市萬華區 建材 木作工程、油漆工程、水電工程、玻璃工程、系統板、旋轉鞋架、燈飾 設計概念 DESIGN CONCEPT 從三年前的預售屋客變開始,我們便與這家人種下了緣分。經歷三年的期待,終於在 115 年正式交屋,將原本對於「家」的想像,精準落地在台北市萬華區的這處社區大樓中。 這是一個標準的 16 坪小坪數挑戰!面對老師女主人與兩位正值青春期的兒子(高中與大學生),如何在有限空間內,滿足海量的「零食收納」與生活機能? 「掀開式收納櫃」,隱藏式設計讓空間坪效極大化,零食與雜物通通完美歸位 格局設計 Layout design 前後比對 Before and after design 其他作品 現代北歐風|多功能質感宅 10坪小宅:裝下生活的所有美好 輕奢之境|藝術與質感的大器空間 現代北歐風|展現俐落感的寵物宅 現代感透天|打造時尚品味生活 清甜感十足!繽紛的北歐童話宅