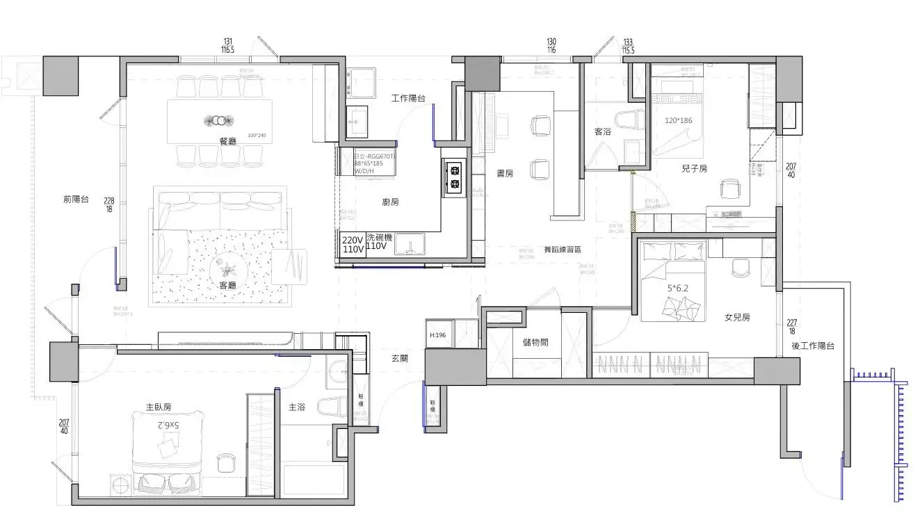
作品集 WORKER 首頁 作品集 住宅設計 輕奢之境|藝術與質感的大器空間 輕奢之境|藝術與質感的大器空間 住宅設計 格局 4房2廳2衛 成員 夫妻、小孩 風格 現代輕奢風 坪數 屋況 新成屋 地點 桃園 建材 木作工程、油漆工程、水電工程、系統板、磁吸燈具、皮革、特殊塗料、鐵件、造型天花、訂製傢俱、大理石、花磚、鍍鈦 設計概念 DESIGN CONCEPT 以「輕奢」為核心,融合藝術與質感,打造一個既大器又不張揚的空間氛圍。透過高級材質與精緻工藝,展現低調奢華的美感。色彩運用上採取中性色調為主,並搭配深色系,強化空間的層次與深度。在佈局上,強調開闊與大器的空間感,搭配藝術端景牆,營造出一種平衡舒適與藝術氣息的氛圍,讓每個細節都成為生活品味的延伸。 整體空間運用沉穩的深色系相互搭配,大理石、鐵件、特殊塗料、鍍鈦..等,異材質巧妙搭配出低調奢華的飯店感氛圍,呈現寧靜張力。玄關在設計師巧心規劃下,結合大理石與燈光效果,呈現迎賓的大匠之氣 進入客餐廚半開放的公共空間,成為家庭成員凝聚核心的場域,產生相互依存的對話空間;過道區規劃開放式書房休憩區域,除了虛化破除長廊道外,還提供家庭成員工作、閱讀、練琴..等,另一個不同功能的互動場域,特殊漆的特性使過道空間的立面更顯活潑。臥室區私領域間都展現出主人不同個性,柔美浪漫與沉穩內斂,都豐富著家庭中每個角落。 大理石搭配燈光打造的高質感端景牆 ▼來看看法式輕奢宅▼ 浪漫粉紅宅!打造居家甜美幸福感 格局設計 Layout design 前後比對 Before and after design 其他作品 16 坪北歐風溫潤木感宅 現代北歐風|多功能質感宅 10坪小宅:裝下生活的所有美好 現代北歐風|展現俐落感的寵物宅 現代感透天|打造時尚品味生活 清甜感十足!繽紛的北歐童話宅