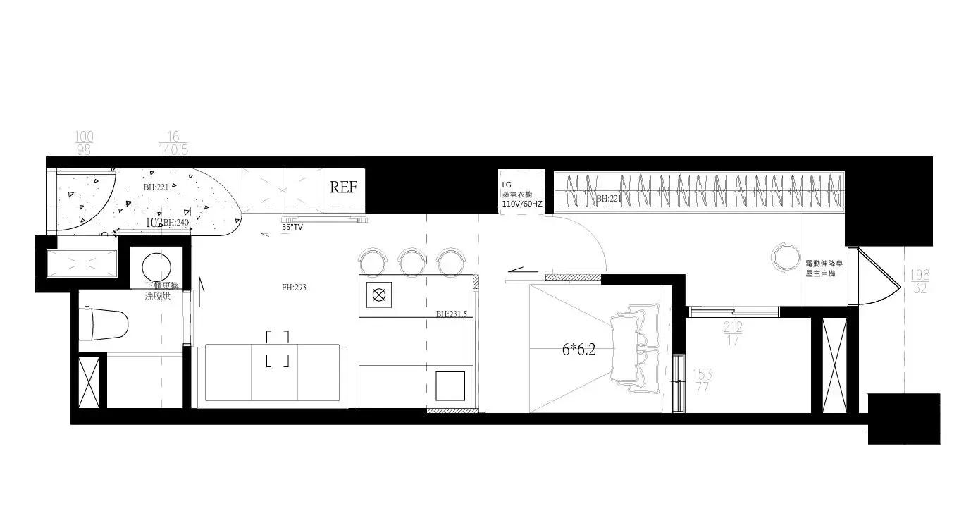
作品集 WORKER 首頁 作品集 住宅設計 10坪小宅:裝下生活的所有美好 10坪小宅:裝下生活的所有美好 住宅設計 格局 2房2廳1衛 成員 新婚夫妻 風格 北歐風 坪數 10坪 屋況 新成屋 地點 新北板橋 建材 木作工程、水電工程、油漆工程、玻璃工程、系統櫃、造型天花板、窗簾、壁紙、現品傢俱、人造石 設計概念 DESIGN CONCEPT 小宅設計:擁有大空間不是夢 追求簡約、實用又有生活美感的小坪數都會住宅,設計師為了避免空間視覺太過雜亂,採用現代極簡風融合北歐風的溫暖感覺,色彩搭配部分以米白、淺木色為基底,營造溫潤而乾淨的氛圍,整體也感覺較為輕盈 使用異材質拼接,區隔出空間 弧形設計讓空間有著視覺上的「去角化」,減少壓迫感,並增加柔和感 ▼看看錯層的小宅設計▼ 清新日式幸福宅 小宅也能擁有4房 格局設計 Layout design 前後比對 Before and after design 其他作品 16 坪北歐風溫潤木感宅 現代北歐風|多功能質感宅 輕奢之境|藝術與質感的大器空間 現代北歐風|展現俐落感的寵物宅 現代感透天|打造時尚品味生活 清甜感十足!繽紛的北歐童話宅