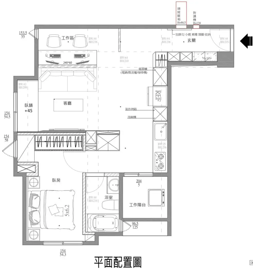
作品集 WORKER 首頁 作品集 住宅設計 現代北歐風|展現俐落感的寵物宅 現代北歐風|展現俐落感的寵物宅 住宅設計 格局 1房1廳1衛 成員 夫妻 風格 現代北歐風 坪數 13坪 屋況 新成屋 地點 新北市新莊區 建材 拆除工程、隔間工程、木作工程、水電工程、泥作工程、油漆工程、衛浴工程、玻璃工程、系統櫃、屏風造型、磁磚、燈具設備 設計概念 DESIGN CONCEPT 寵物宅設計:以寵物舒適為出發點 設計師透過簡約的線條、溫暖的色彩以及豐富的材質,營造出一個舒適、放鬆的氛圍。同時,也考慮到居住者的個性化需求,融入寵物空間和展示櫃等元素,讓空間更具個性,考量到寵物活動動線,盡量放大空間的開闊性,打造一個寵物宜居的寵物宅 ▼貓咪也愛的家▼ 輕工業北歐風!我家溫暖中又帶有個性 格局設計 Layout design 前後比對 Before and after design 其他作品 16 坪北歐風溫潤木感宅 現代北歐風|多功能質感宅 10坪小宅:裝下生活的所有美好 輕奢之境|藝術與質感的大器空間 現代感透天|打造時尚品味生活 清甜感十足!繽紛的北歐童話宅