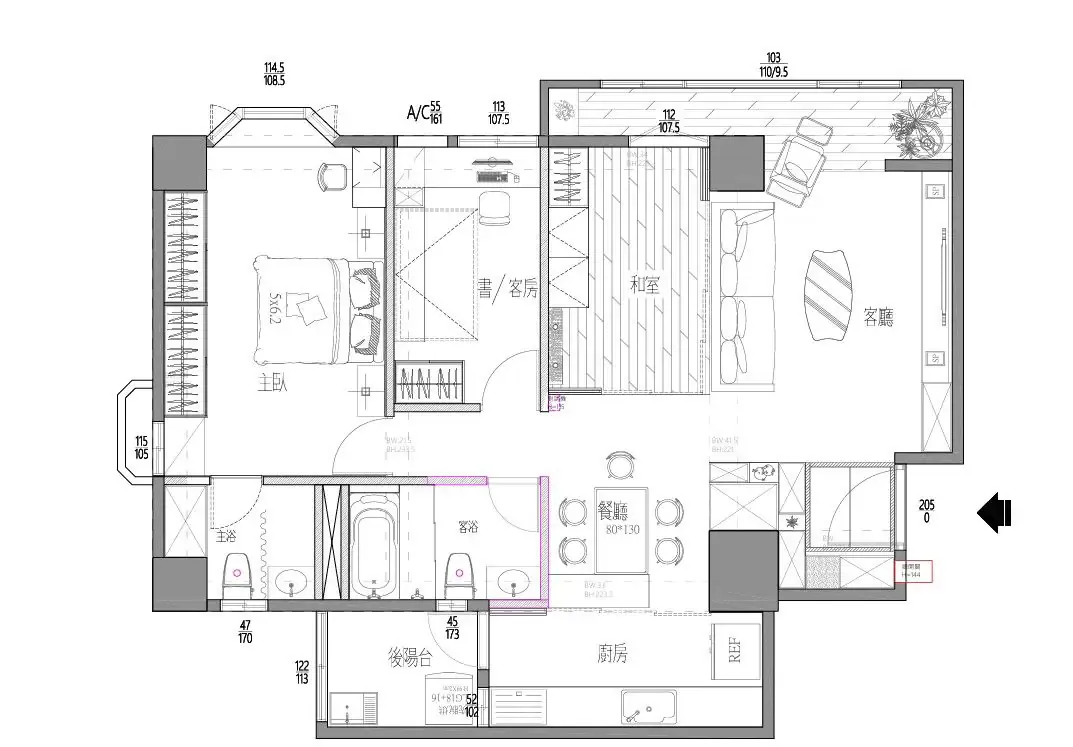
作品集 WORKER 首頁 作品集 住宅設計 現代北歐風|多功能質感宅 現代北歐風|多功能質感宅 住宅設計 格局 2房2廳2衛 成員 風格 現代北歐風 坪數 30坪 屋況 社區大樓 地點 新北市 建材 設計概念 DESIGN CONCEPT 門片設計讓空間更靈活,利用門片隔出客廳、用餐區、廚房、多功能空間 格局設計 Layout design 前後比對 Before and after design 其他作品 16 坪北歐風溫潤木感宅 10坪小宅:裝下生活的所有美好 輕奢之境|藝術與質感的大器空間 現代北歐風|展現俐落感的寵物宅 現代感透天|打造時尚品味生活 清甜感十足!繽紛的北歐童話宅