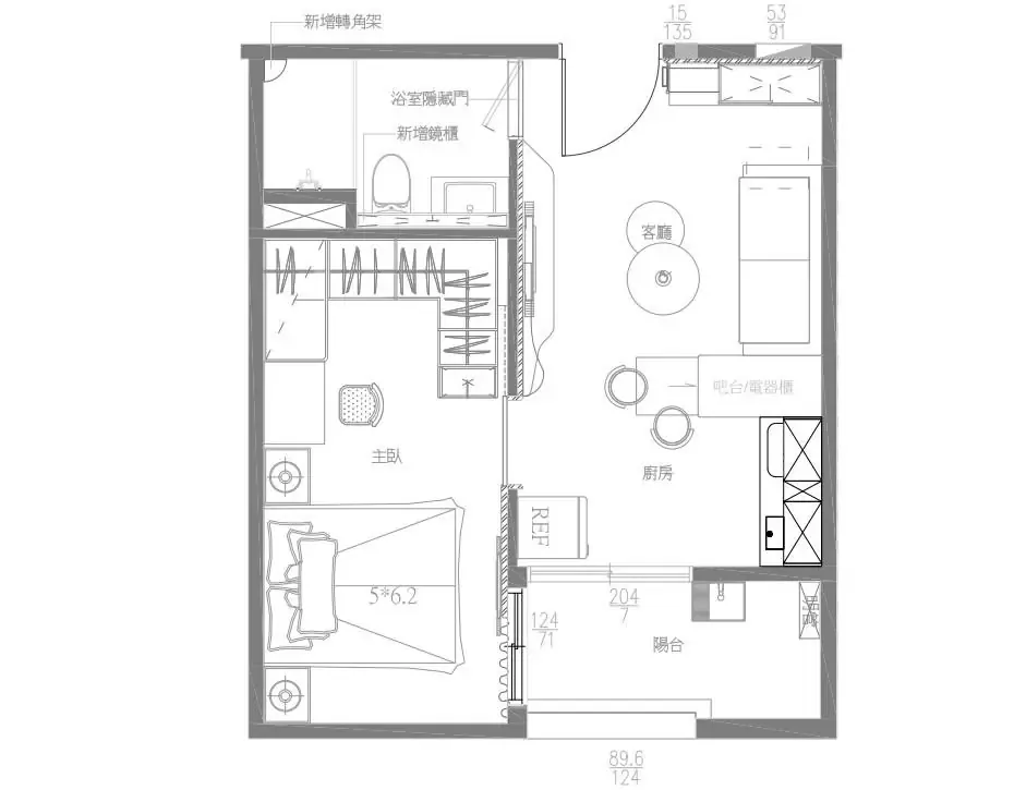
作品集 WORKER 首頁 作品集 住宅設計 9坪小宅|現代獨身精緻美居 9坪小宅|現代獨身精緻美居 住宅設計 格局 1房1廳1衛 成員 自住 風格 現代風 坪數 9坪 屋況 新成屋 地點 新北市中和區 建材 拆除工程、木作工程、水電工程、油漆工程、系統櫃、窗簾、電器櫃、電視造型櫃、西班牙賽麗石、LED軌道燈、特殊塗料 設計概念 DESIGN CONCEPT 小坪數設計簡約卻不簡單,機能美學的完美結合,圓弧不規則的線條營造出現代的俐落感, 以白色、灰色、黑色為主基底,讓小坪數也能有大器的時尚感,視覺上卻不顯沉重,色彩搭配得宜 圓弧不規則的線條營造出現代的俐落感 ▼看看另一種風格的10坪美宅▼ 10坪小宅:裝下生活的所有美好 格局設計 Layout design 前後比對 Before and after design 其他作品 16 坪北歐風溫潤木感宅 現代北歐風|多功能質感宅 10坪小宅:裝下生活的所有美好 輕奢之境|藝術與質感的大器空間 現代北歐風|展現俐落感的寵物宅 現代感透天|打造時尚品味生活