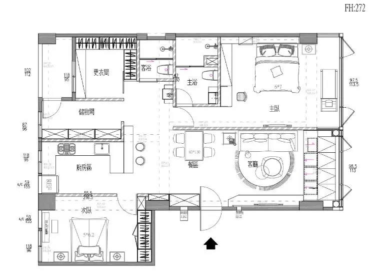
作品集 WORKER 首頁 作品集 住宅設計 輕工業北歐風!我家溫暖中又帶有個性 輕工業北歐風!我家溫暖中又帶有個性 住宅設計 格局 4房2廳2衛 成員 夫妻&寵物 風格 輕工業北歐風 坪數 35坪 屋況 中古屋 地點 新北市永和區 建材 木作工程、油漆工程、衛浴工程、空調工程、窗簾工程、系統櫃、文化石、鋁門窗、磁磚、烤漆玻璃、造型天花 設計概念 DESIGN CONCEPT 25年的老房子迎來新家庭的進駐,翻開嶄新的生活篇章。為了給2人2貓健康的生活環境,思維細膩的法柏室內裝修許韶恩設計師,建材上選用環保乳膠漆、耐磨防水的低甲醛木質,兼顧機能性並確保家中也有清新空氣。風格上整合女主人喜愛的北歐風,男主人喜愛的輕工業風,精心重劃,打造熨貼人心的專屬空間。 玄關入門地坪鋪設復古花磚,隱性劃分出落塵區,一旁鞋櫃以懸空手法削減厚重感,連袂的玻璃收納櫃,則在柔化結構柱的剛硬同時賦予牆面豐富表情。客廳電視牆砌築出厚度修飾雜亂的管線,其斜切設計更與上方斜簷組成「家」的輪廓,再結合下方櫃體巧妙融入的英文字母「home」,寓意新家庭的故事即將展開。 窗前臥榻區藏有規劃完善的收納空間,牆面依據貓咪習性,精算高度設置休憩的層板及太空艙,讓屋主在此放鬆時,也能與貓咪嬉戲,建立深厚情誼,享受幸福時光。餐廳後方增設了吧台,讓夫妻倆能自由切換不同的用餐情境。後方洗手台運用工業風的OSB板及北歐風的繽紛幾何花磚,塑造出活潑優雅的室內端景,不僅提升了使用效率,也傳遞不同性格的兩人,相互磨合、平衡,最終攜手共度一生,書寫精彩生活情節的溫馨意涵。 ▼個性風十足的美式工業風▼ 美式工業風|個性十足 打造溫厚個性宅 格局設計 Layout design 前後比對 Before and after design 其他作品 16 坪北歐風溫潤木感宅 現代北歐風|多功能質感宅 10坪小宅:裝下生活的所有美好 輕奢之境|藝術與質感的大器空間 現代北歐風|展現俐落感的寵物宅 現代感透天|打造時尚品味生活