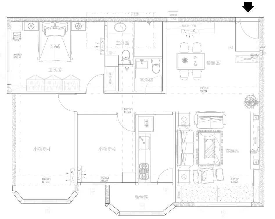
作品集 WORKER 首頁 作品集 住宅設計 日光引渡 北歐鄉居小調 日光引渡 北歐鄉居小調 住宅設計 格局 2房2廳2衛 成員 風格 北歐鄉村風 坪數 35坪 屋況 中古屋 夫妻&小孩 地點 台北市萬華區 建材 拆除工程、木作工程、水電工程、泥作工程、油漆工程、衛浴工程、玻璃工程、系統櫃、浮雕海島木地板、造型天花、磁磚文化石、南方松、洗石子 設計概念 DESIGN CONCEPT 北歐鄉村風的日光居所,十五年歲月荏苒,衰敗的只是房舍樣貌,卻能跟隨新生活的建構,而有了翻轉重生的機會,女主人喜歡北歐鄉村風格中溫馨暖和的生活感受,設計師以溫暖厚實的建材著手鋪排。粗大南方松在餐廳天花交錯出粗獷自然的鄉居小屋風情,而客廳的白灰色文化石下方,設計師採植筋手法,將保留樹皮原色的實木內嵌入牆面,以大量留白減去繁複手法,讓建材表情輕敘北歐風情。 在格局機能設定上,設計師在入門處結合端景鞋櫃與噴砂玻璃獨立出玄關機能,並掩去穿堂煞的直進視野,另在客廳窗邊打造一處賞景臥榻閱讀區,兩側的置頂書架與臥榻下收納,讓小朋友養成將書本與玩具歸位的良好生活習慣。沒有更衣室規劃的主臥房則利用門後與床尾衣櫃畸零區,爭取更多收納儲物空間,並因應使用習慣,調整主、客衛浴格局,契合使用者需求,量身規劃實用美宅。 ▼ 看看古典鄉村風 ▼ 氣質古典感十足,一圓老屋的鄉村夢 格局設計 Layout design 前後比對 Before and after design 其他作品 16 坪北歐風溫潤木感宅 現代北歐風|多功能質感宅 10坪小宅:裝下生活的所有美好 輕奢之境|藝術與質感的大器空間 現代北歐風|展現俐落感的寵物宅 現代感透天|打造時尚品味生活