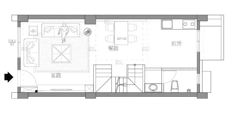
作品集 WORKER 首頁 作品集 住宅設計 三代同堂的現代居所 三代同堂的現代居所 住宅設計 格局 3層樓/4房2廳3衛 成員 三代同堂 風格 現代風 坪數 42坪 屋況 獨棟別墅 地點 桃園市新屋區 建材 木作工程、水電工程、油漆工程、玻璃工程、系統櫃、造型天花、窗簾、壁紙、現品傢俱、人造石、燈飾 設計概念 DESIGN CONCEPT 獨棟設計以簡約的線條和溫潤的材質打造一個舒適、溫馨的居家環境,兼顧美觀、實用和功能性,讓三代同堂的每個成員都能找到屬於自己的空間,同時共享美好的生活時光。 ▼看更多透天別墅▼ 現代感十足 透天別墅空間 格局設計 Layout design 前後比對 Before and after design 其他作品 16 坪北歐風溫潤木感宅 現代北歐風|多功能質感宅 10坪小宅:裝下生活的所有美好 輕奢之境|藝術與質感的大器空間 現代北歐風|展現俐落感的寵物宅 現代感透天|打造時尚品味生活