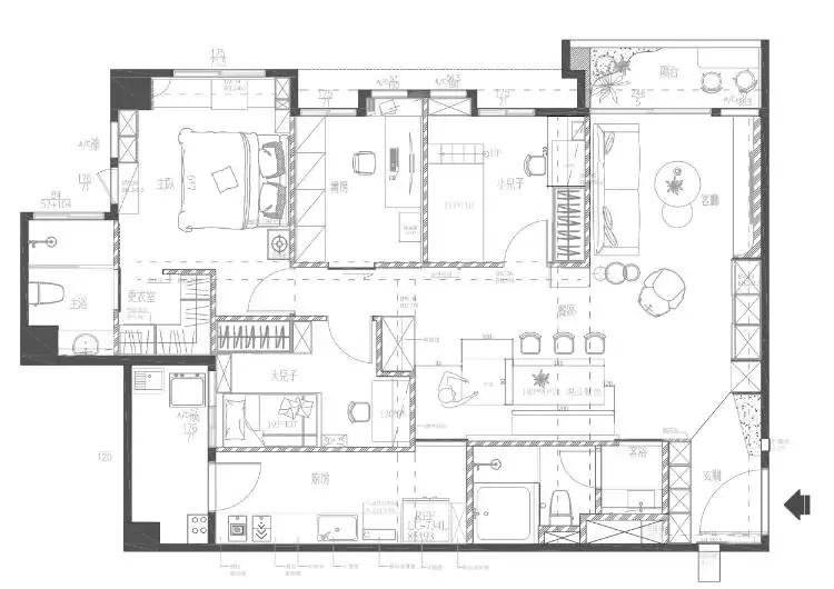
作品集 WORKER 首頁 作品集 住宅設計 充滿藍天白雲的現代北歐風BA 充滿藍天白雲的現代北歐風BA 住宅設計 格局 4房2廳2衛 成員 夫妻&小孩 風格 現代北歐風 坪數 37.5坪 屋況 中古屋 地點 新北市中和區 建材 拆除工程、木作工程、水電工程、泥作工程、油漆工程、衛浴/廚具工程、玻璃工程、系統櫃、SPC石塑地板、繃布、造型天花、磁磚、人造石、中島櫃、拉門、防潮石膏磚、LED鋁條燈、嵌入式軌道插座 設計概念 DESIGN CONCEPT 現代北歐風也能有夏日氛圍,屋主喜愛夏天的氛圍感,因此設計靈感來自大自然的藍天與白雲,將清新、明亮的藍色作為主色調,營造出一種如置身自然懷抱的寧靜氛圍。藍色代表了廣闊與自由,而白色則象徵純潔與寧靜,兩者的結合不僅視覺上和諧美觀,更帶來心靈上的放鬆與愉悅。 並針對男屋主的收藏訂製專屬的展示收納架,兼顧收藏和展示的樂趣 鐵製洞洞板承重力更佳,拿取保養也更方便 ▼馬卡龍色系的北歐風▼ 清甜感十足!繽紛的北歐童話宅 格局設計 Layout design 前後比對 Before and after design 其他作品 16 坪北歐風溫潤木感宅 現代北歐風|多功能質感宅 10坪小宅:裝下生活的所有美好 輕奢之境|藝術與質感的大器空間 現代北歐風|展現俐落感的寵物宅 現代感透天|打造時尚品味生活