純白北歐風|簡約明亮 一間會呼吸的純白北歐公寓

純白北歐風讓人心曠神怡,該案為老屋翻新案,屋主非常有想法,並且有著明確的風格喜好,以及空間使用需求明確,由設計師執行整合

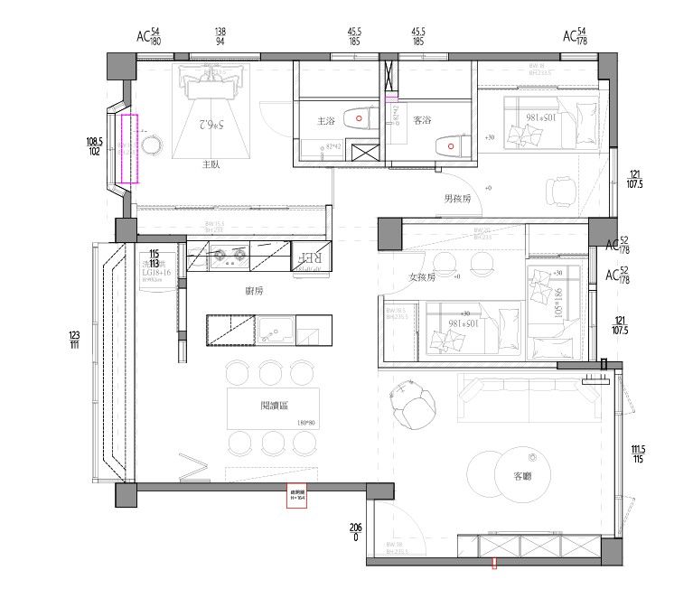
純白北歐風-基本資訊

messageImage_1743427089670.jpg

房型:3房2廳2衛

屋齡:37年

家庭成員:夫妻+3小孩

設計重點

由於為37年的老屋,因此相當著重在基礎工程,像是水電管線重新更換、漏水壁癌檢測病蟲做防水處理,以及全屋地磚更新,再來是依照家庭成員的需求重做格局

487114469_1079925767490129_905172097614418974_n.jpg

由於業主相當重視採光,因此採用大面積的落地窗,並以白色為基礎色調,整體看起來更為清新明亮

301270_0.jpg

由於此區為家中自然採光最優的地方,空間也大,因此設立了閱讀區,媽媽做料理時也能夠和家人聊天,大型實木桌也有視覺重點

486797829_1079924047490301_4342296233181023152_n.jpg

並使用工業風格的軌道燈做為點綴,讓空間更有層次感

301266_0.jpg

全屋採無主燈設計,運用軌道燈,燈光較為柔和可以避免單一光源亮度不均勻,也讓空間有更加寬擴放大的效果

486941769_1079925467490159_8478363535911039187_n.jpg
301267_0.jpg

全屋空間採軌道燈也更有一致性,門板採用帶有美式風格的穀倉門,具備溫潤率真的自然感,呼應了北歐風的崇尚自然

301268_0.jpg
301269_0.jpg

在收納部分也要求能彈性使用、大量收納,因此採用壁櫃收納,利用牆面高度來收納,能有效利用垂直空間,可依據空間大小與需求訂製,無論是內建照明、隱藏式把手、推拉門或掀門設計,都能根據使用者習慣調整。

以極簡的設計、柔和的光線與大量的收納空間,營造出既舒適又療癒的居住空間,並且家庭成員都有自己的獨立空間,兼顧隱私,每一吋空間都能感受到生活的溫度,讓人放慢步調、自在呼吸。

(延伸閱讀:電視牆設計重點 各種優點一次看

聯絡我們

官方FB:Facebook

官方IG:Instagram

官方LINE ID:𝟮𝟮𝟰𝟳𝟳𝟰𝟰𝟵

官方Threads:Threads